Event

イベント情報

  • イベント
  • 見学会
  • 販売会

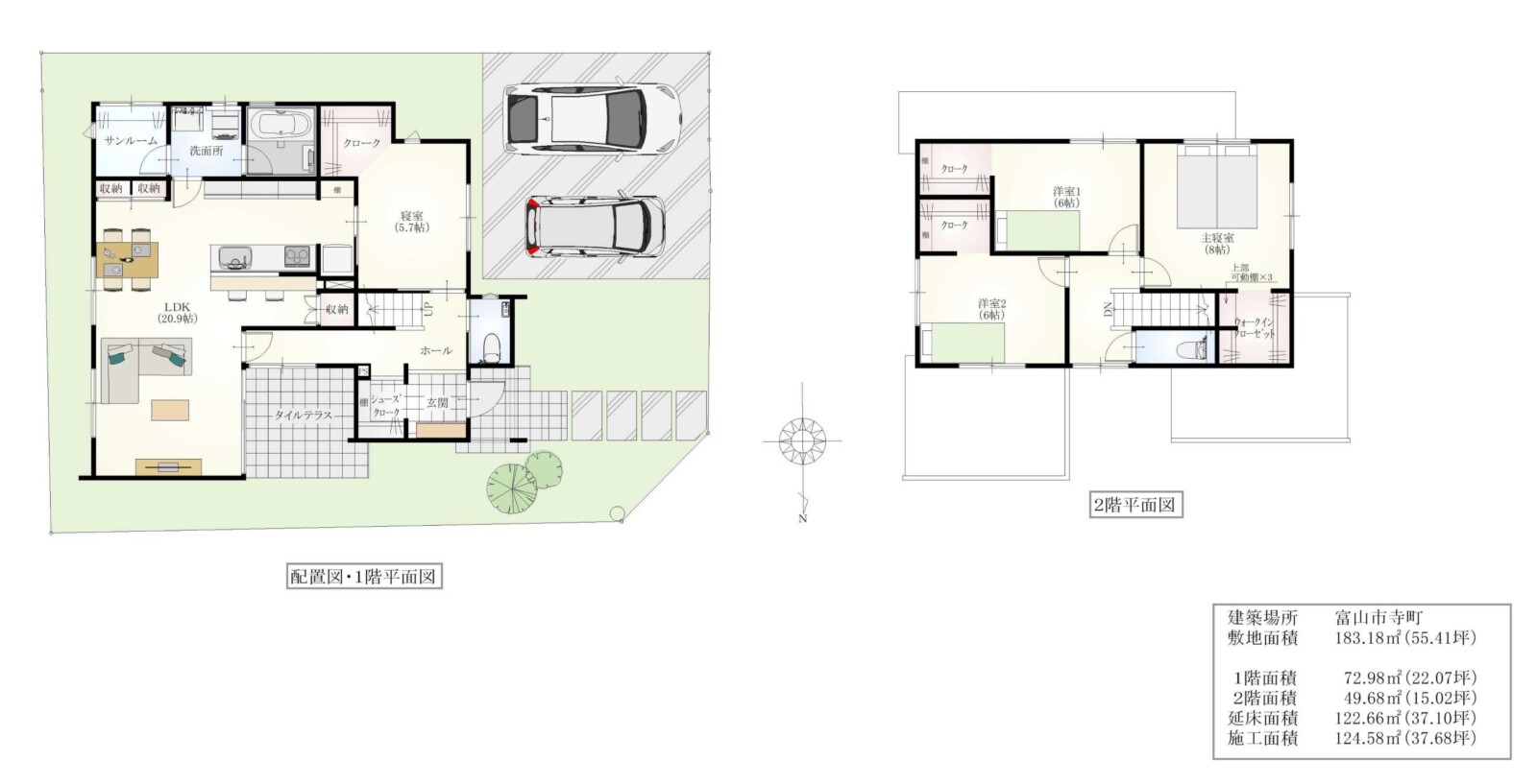
富山市寺町 新築モデル住宅完成見学会
「収納も動線もワンランク上へ」
―建物面積を抑えた収納の発想で叶えた全室WIC×1階主寝室の4LDKモデル―

☆このような御要望がある方におすすめ☆

「一階に寝室が欲しいけど、将来の生活動線を考慮した間取りにしたい、、、」

「物が多いけど、建物面積を増やさずに効率よく使える収納スペースが沢山ほしい、、、」

「外からの目線を気にせず、光を取り入れて明るく暮らせる間取りにしたい、、、」

場 所

富山市寺町

期 間

4/11(土)~4/19(日)

時 間

10:00~17:00

 

 

外からの視線を遮るように囲まれた4.5帖の中庭から光が差し込み、

一日を通して暖かな明るいリビングになります

 

 

一階に寝室を設け、LDKと繋げることで

「平屋のような暮らし」を実現できる動線を設計。

 

全部屋にウォークインクローゼットを設けることで

唯一無二の収納美も実現した住まいです。

※要予約

下記フォームまたは、お電話よりお申込み下さい

 

イベントのご予約

参加イベント名 富山市寺町 新築モデル住宅完成見学会 4/11~4/19

    第1希望日時必須 日:
    時間:
    第2希望日時必須 日:
    時間:
    お名前必須
    ふりがな必須
    郵便番号
    ご住所
    電話番号必須
    メールアドレス必須
    土地
    年齢
    ご相談したい内容(複数可)
    当社を知るきっかけとなった媒体は?
    その他ご要望など

    個人情報の取り扱いに関しましてはプライバシーポリシー」をご確認ください。


    このサイトはreCAPTCHAによって保護されており、Googleのプライバシーポリシー利用規約が適用されます。
    This site is protected by reCAPTCHA and the Google Privacy Policy and Terms of Service apply.

    イベント情報一覧